Home
About Me
Works
Say Hello
Home
About Me
Works
Say Hello
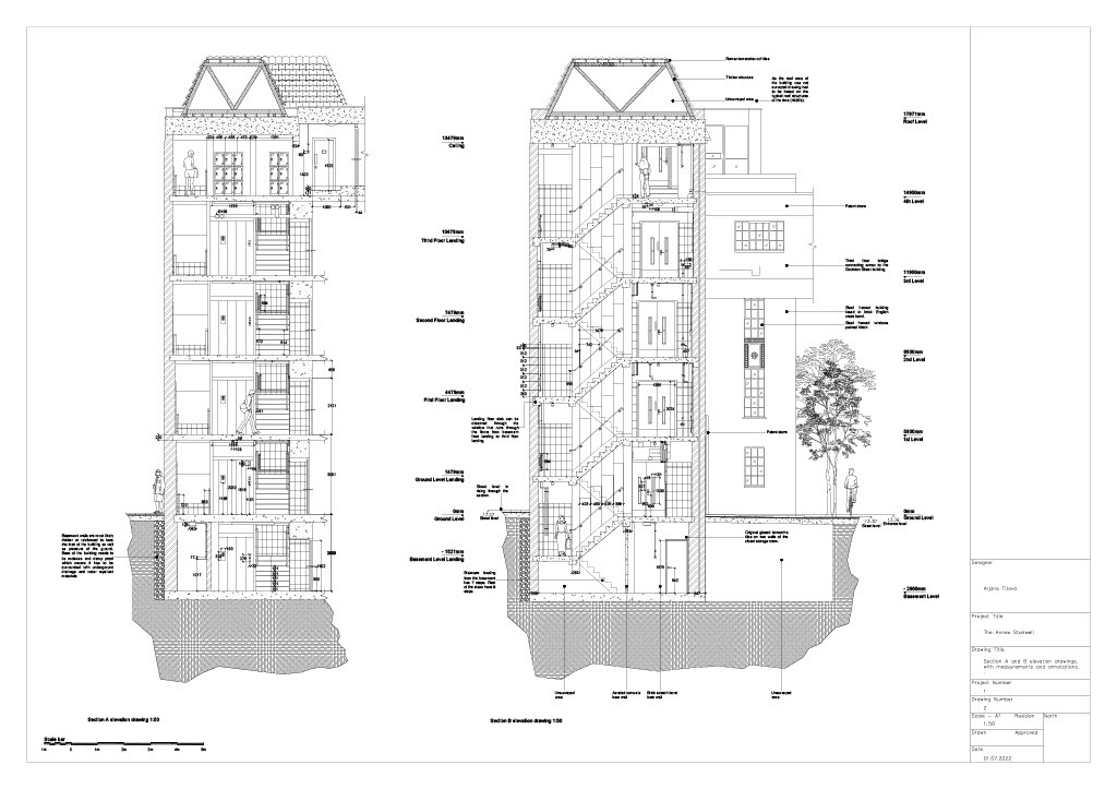
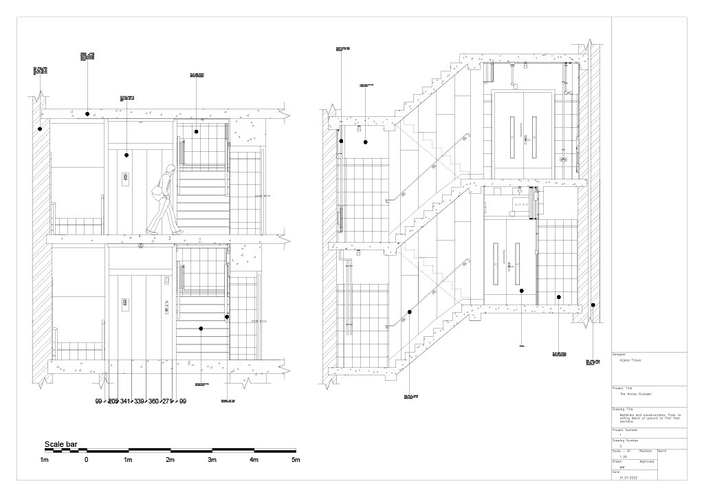
Technical Drawings
You may also like
Model Making
2026
Cad Art
2026
↑
Back to Top